
Casa Rua de São Marcos
Reabilitação de edifício do século XIX
autoria:
António Pedro Faria
ano conclusão do projecto: 2020
área bruta construída: 185,59 m2
cliente: Privado
construtor: AOF–Augusto Oliveira Ferreira
fotografia: Tiago Casanova
 
 
 
 
No momento de intervir num edifício existente, surge sempre a confrontação entre o antigo e o novo. 
Um edifício do séc. XIX, situado no Centro Histórico de Braga, Rua de São Marcos, é a estrutura preliminar a partir da qual se produz este projecto, que quer pôr em evidência as qualidades do existente. Através de uma análise cuidada das características do edifício, em paralelo com aquilo que são os objectivos do novo programa, procura-se uma solução que crie um todo coerente e harmonioso.
As qualidades do existente
Ao analisar o edifício existente, nota-se uma das qualidades mais comuns em edifícios com estas características tipológicas: a sua flexibilidade. Esta flexibilidade é facilmente constatada na forma como o edifício foi sendo dividido e ocupado ao longo do tempo mantendo, no entanto, a sua forma e estrutura inalterada.
A flexibilidade do edifício acontece pela forma como se organiza. Podemos identificar um núcleo central de distribuição que dá acesso a duas zonas, que se relacionam com as duas fachadas. A dimensão generosa destes zonas, em que não se define um determinado uso ou tipo de espaço, permite que os mesmos possam funcionar como um todo ou de forma isolada.
Programa
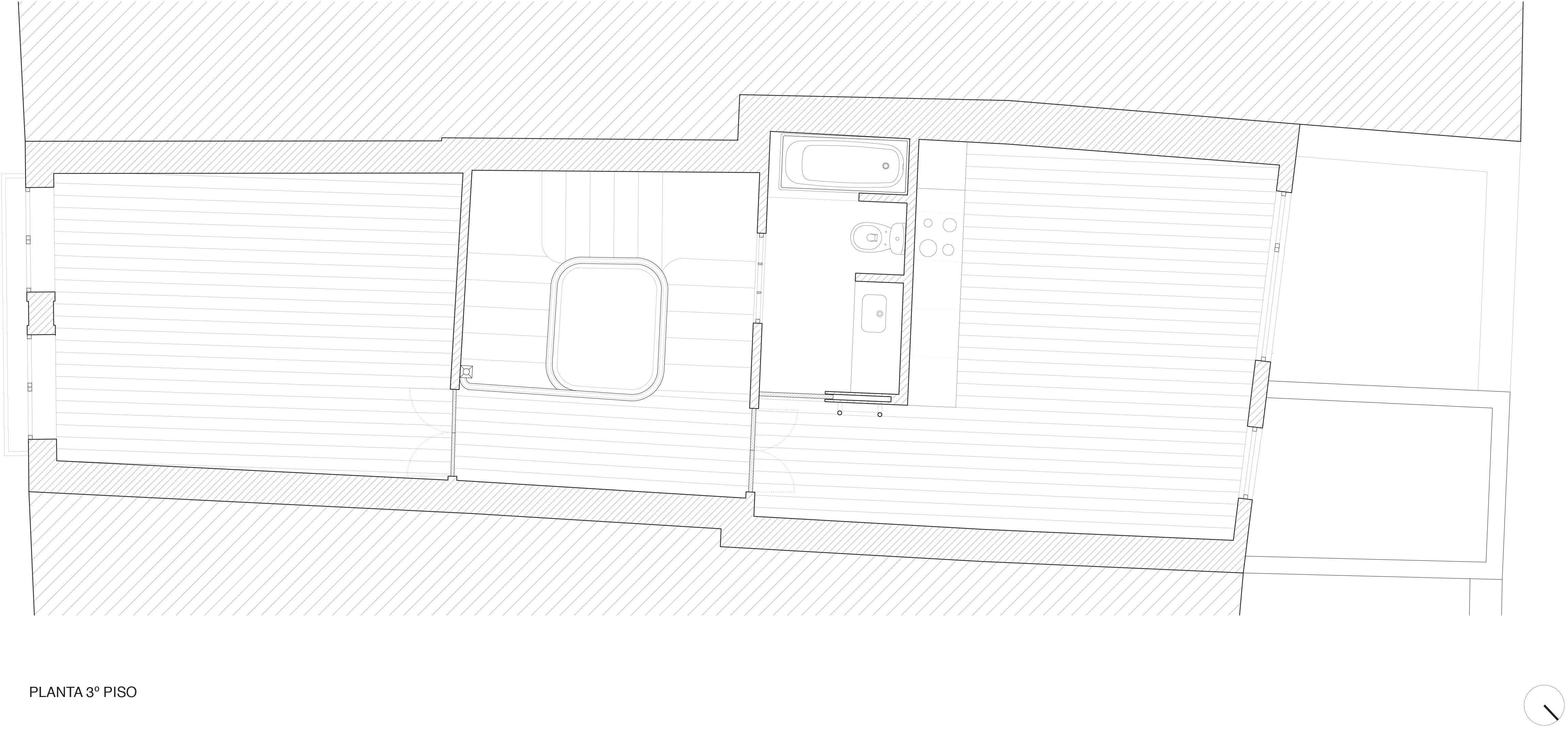
O projecto responde à intenção de parcelar os pisos 2 e 3 em duas habitações, mantendo, no entanto, a caixa de escadas central de distribuição existente inalterada. Para tal é proposta a adição de um dispositivo divisor do espaço.
Este dispositivo mantém e evidencia as qualidades já presentes na caixa de escadas, nomeadamente no que diz respeito à iluminação e ventilação naturais, à sua função de espaço de distribuição e núcleo agregador de todo o edifício.
Através da adição deste dispositivo, feita de forma precisa, é possível por um lado, potenciar as qualidades da caixa de escadas existentes e, por outro, dotar este espaço de novas qualidades, nomeadamente enquanto elemento de entrada e separação para uma das habitações. A estrutura é executada em esqueleto de madeira e preenchida a painéis translúcidos de policarbonato, permitindo assim que este espaço central e aglutinador do edifício continue dotado de luz e ventilação naturais, garantindo a privacidade para a habitação.
A divisão dos dois pisos dá origem a dois apartamentos: um estúdio e um T2. O estúdio beneficia da área generosa que a zona entre a caixa de escadas e a fachada de tardoz possui. O apartamento T2 desenvolve-se em dois pisos. No segundo piso, tira-se partido do pé-direito com uma altura igualmente generosa, resultante da inclinação da cobertura. Na zona de estar é criado um núcleo funcional que permite a criação de um espaço de estar em mezanino.
Outra das intenções do projecto passa por conservar sempre que possível os pavimentos, as caixilharias em madeira ou os elementos decorativos presentes na clarabóia ou tectos.
Metamorfose
A confrontação que existe entre o antigo e o novo, as novas necessidades trazidas pelo programa e a intenção de manter as qualidades do existente, tornam-se os três eixos a que o projecto deu resposta.
Partindo do existente e das suas qualidades, trabalhando com elas e potenciando-as para assim alcançar uma metamorfose que responda aos desafios contemporâneos, é o princípio orientador de todo o projecto.
	Um edifício do séc. XIX, situado no Centro Histórico de Braga, Rua de São Marcos, é a estrutura preliminar a partir da qual se produz este projecto, que quer pôr em evidência as qualidades do existente. Através de uma análise cuidada das características do edifício, em paralelo com aquilo que são os objectivos do novo programa, procura-se uma solução que crie um todo coerente e harmonioso.
As qualidades do existente
Ao analisar o edifício existente, nota-se uma das qualidades mais comuns em edifícios com estas características tipológicas: a sua flexibilidade. Esta flexibilidade é facilmente constatada na forma como o edifício foi sendo dividido e ocupado ao longo do tempo mantendo, no entanto, a sua forma e estrutura inalterada.
A flexibilidade do edifício acontece pela forma como se organiza. Podemos identificar um núcleo central de distribuição que dá acesso a duas zonas, que se relacionam com as duas fachadas. A dimensão generosa destes zonas, em que não se define um determinado uso ou tipo de espaço, permite que os mesmos possam funcionar como um todo ou de forma isolada.
Programa
O projecto responde à intenção de parcelar os pisos 2 e 3 em duas habitações, mantendo, no entanto, a caixa de escadas central de distribuição existente inalterada. Para tal é proposta a adição de um dispositivo divisor do espaço.
Este dispositivo mantém e evidencia as qualidades já presentes na caixa de escadas, nomeadamente no que diz respeito à iluminação e ventilação naturais, à sua função de espaço de distribuição e núcleo agregador de todo o edifício.
Através da adição deste dispositivo, feita de forma precisa, é possível por um lado, potenciar as qualidades da caixa de escadas existentes e, por outro, dotar este espaço de novas qualidades, nomeadamente enquanto elemento de entrada e separação para uma das habitações. A estrutura é executada em esqueleto de madeira e preenchida a painéis translúcidos de policarbonato, permitindo assim que este espaço central e aglutinador do edifício continue dotado de luz e ventilação naturais, garantindo a privacidade para a habitação.
A divisão dos dois pisos dá origem a dois apartamentos: um estúdio e um T2. O estúdio beneficia da área generosa que a zona entre a caixa de escadas e a fachada de tardoz possui. O apartamento T2 desenvolve-se em dois pisos. No segundo piso, tira-se partido do pé-direito com uma altura igualmente generosa, resultante da inclinação da cobertura. Na zona de estar é criado um núcleo funcional que permite a criação de um espaço de estar em mezanino.
Outra das intenções do projecto passa por conservar sempre que possível os pavimentos, as caixilharias em madeira ou os elementos decorativos presentes na clarabóia ou tectos.
Metamorfose
A confrontação que existe entre o antigo e o novo, as novas necessidades trazidas pelo programa e a intenção de manter as qualidades do existente, tornam-se os três eixos a que o projecto deu resposta.
Partindo do existente e das suas qualidades, trabalhando com elas e potenciando-as para assim alcançar uma metamorfose que responda aos desafios contemporâneos, é o princípio orientador de todo o projecto.
When intervening in an existing building, there is always a confrontation between the old and the new.
A building from the XIX century, located at São Marcos street, in Braga’s historical centre, is the starting point from which the project develops, whilst highlighting its existing qualities. By meticulously analysing the building characteristics and at the same time addressing the needs of the new program, the project aims to create a coherent and harmonious whole.
The existing building qualities
When analysing the existing structure, one notices one of the most common aspects in buildings with these typological characteristics: its flexibility. This flexibility is clearly visible in the way the building has been divided and occupied over time, maintaining its shape and structure unaltered.
The building’s flexibility arises from its original structure. It is possible to identify a central distribution core that provides access to two zones, each with direct relation to both facades. The generous size of these zones, without any particular use defined, allows them to function together or isolated.
Program
The project answers to the client’s need of dividing the 2nd and 3rd floors into two dwellings, whilst keeping the existing central distribution staircase unaltered. To this end, it is proposed to add a space-dividing device.
This device preserves and highlights the staircase’s qualities: the natural lighting and ventilation, its function as a distribution space and aggregating core for the entire building.
The careful implementation of this device allows, on the one hand, for these already existing attributes to be enhanced and on the other to provide this space with new qualities, namely, as an entry and separation element for one of the dwellings. The structure comprises of a wooden skeleton covered with translucent polycarbonate panels, which allows this central and unifying space to continue benefiting from the natural light and ventilation, while granting the inhabitants’ privacy.
The division of the two floors creates two dwellings: a studio and a two bedroom apartment. The studio benefits from the generous space encompassing the area between the stairwell and the back facade. The two bedroom extends combines two floors. On the second floor, the project takes advantage of the great height created by the slope of the roof. In the living area, a functional nucleus allows for the creation of a mezzanine with a new living space.
Whenever possible, the preservation and rehabilitation of the original floors, wooden frames and decorative elements of the skylight and ceilings was a priority.
Metamorphosis
The confrontation between the old and the new, the needs brought by the client’s program and the intention to preserve the qualities of the existing structure are the three axes that have guided the whole project. By responding to the contemporary challenges, by enhancing its original qualities, the building achieves its metamorphosis.
A building from the XIX century, located at São Marcos street, in Braga’s historical centre, is the starting point from which the project develops, whilst highlighting its existing qualities. By meticulously analysing the building characteristics and at the same time addressing the needs of the new program, the project aims to create a coherent and harmonious whole.
The existing building qualities
When analysing the existing structure, one notices one of the most common aspects in buildings with these typological characteristics: its flexibility. This flexibility is clearly visible in the way the building has been divided and occupied over time, maintaining its shape and structure unaltered.
The building’s flexibility arises from its original structure. It is possible to identify a central distribution core that provides access to two zones, each with direct relation to both facades. The generous size of these zones, without any particular use defined, allows them to function together or isolated.
Program
The project answers to the client’s need of dividing the 2nd and 3rd floors into two dwellings, whilst keeping the existing central distribution staircase unaltered. To this end, it is proposed to add a space-dividing device.
This device preserves and highlights the staircase’s qualities: the natural lighting and ventilation, its function as a distribution space and aggregating core for the entire building.
The careful implementation of this device allows, on the one hand, for these already existing attributes to be enhanced and on the other to provide this space with new qualities, namely, as an entry and separation element for one of the dwellings. The structure comprises of a wooden skeleton covered with translucent polycarbonate panels, which allows this central and unifying space to continue benefiting from the natural light and ventilation, while granting the inhabitants’ privacy.
The division of the two floors creates two dwellings: a studio and a two bedroom apartment. The studio benefits from the generous space encompassing the area between the stairwell and the back facade. The two bedroom extends combines two floors. On the second floor, the project takes advantage of the great height created by the slope of the roof. In the living area, a functional nucleus allows for the creation of a mezzanine with a new living space.
Whenever possible, the preservation and rehabilitation of the original floors, wooden frames and decorative elements of the skylight and ceilings was a priority.
Metamorphosis
The confrontation between the old and the new, the needs brought by the client’s program and the intention to preserve the qualities of the existing structure are the three axes that have guided the whole project. By responding to the contemporary challenges, by enhancing its original qualities, the building achieves its metamorphosis.

 
 
 
 
 
 
 
 
 
 


 
 
 
 
 
 
 
 
 
 

 
 
 
 


